| 価格 | 4,198万円 ![]() |
||||
|---|---|---|---|---|---|
| 所在地 | 京都府宇治市羽拍子町
この地域周辺の物件を見る |
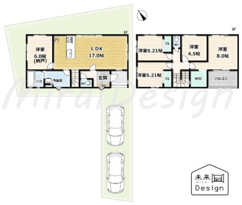
土地面積 | 132.48m² (40.07坪) | 建物面積 | 105.16m2 |
| 築年月 | 2026年7月築 | 間取り | 4SLDK (-) | ||
| 交通 |
近鉄京都線 伊勢田 徒歩6分
JR奈良線 JR小倉 徒歩12分 JR奈良線 新田 徒歩18分 |
||||
| 特徴 |
|
|---|---|
| セールスコメント | 間取り4SLDK+駐車スペース2台ございます♪ |
| 採光面 | - | 構造/階数 | 木造/地上2階建 |
|---|---|---|---|
| 建ぺい率 | 60(%) | 容積率 | 200(%) |
| 駐車場 | 有 | 現況/引渡し | 建築中/2026年7月中旬 |
| 土地権利 | 所有権 | 私道負担面積 | - |
| 接道状況 | 接道: 南西 3m 道路幅: 6m | 用途地域 |
第一種住居地域
|
| セットバック | - | 法令上の制限 | 第3種高度地区、準防火地域 |
| 地目 | 宅地 | 地勢 | |
| 建築確認番号 | 第R07確認建築IPEC30296号 | 都市計画 | 市街化区域 |
| 取引態様 | 媒介 | ||
| 情報更新日 | 2026年04月17日 | 次回更新日 | 2026年05月01日 |
| 小学校区 | () |
中学校区 | () |
|---|
| 価格 | 万円 | ||
|---|---|---|---|
| 年利率 | % |
||
| ボーナス払い | 返済年数 | ||
| 頭金 | 直接入力する | 万円 | |

毎月のご返済額 |
ボーナス(×年2回) |
物件価格4,198万円 |
![]() |
![]() |
宇治市羽拍子町
530万円〜4498万円 |
ピタットハウス小倉店ではみなさまの不動産購入・不動産売却・賃貸・賃貸管理・リフォームや住宅ローンのご相談など不動産に関する様々なご質問やご不明点にご対応させていただきます。ご来店やメールフォームからのお問い合わせもお待ちしております。
近鉄・JRの2沿線利用可能です♪